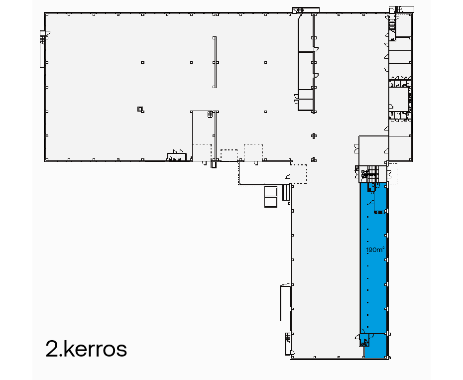
Toimisto jaettavissa: 190m2 / 2B avotilaa, sos.tila ja toimisto, 190m2/3B:ssä 5 huonetta, taukotila ja neuvottelutila. Vapautuminen neuvoteltavissa.
Kysy lisää mika.tilli@rhg.fi. 0407013005
| Kohdenumero: 12982 |
| Osoite: Vantaanpuistontie 31, 01730 Vantaa |
| Pinta-ala: 380 m² |
| Uudisrakennus: Ei |
| Osakehuoneisto: Ei |
| Kaavoitus: Asemakaava |
| Energialuokka: ei |
| Asbestikartoitus: Ei |
| Tupakointi: Ei |
