Vuokrattavana 11 m korkeaa ja uudeentasoista käytännöllistä varastotilaa viidellä lastaustaskulla ja lisäksi avolaituri nosto-ovella. Kohde hyvällä sijainnilla Kehä III:n suorassa läheisyydessä.
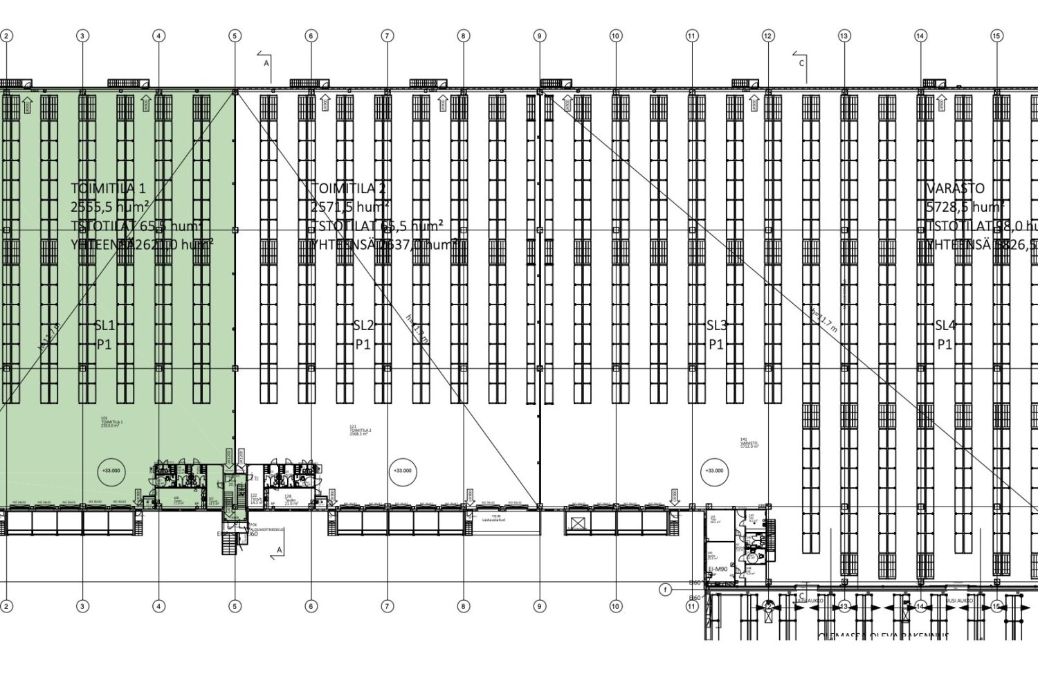
Toimitilan koko: varasto 2555,5 m² + parvitoimisto 65,5 m² sekä 1. kerroksen sosiaali- ja taukotilat 65,5 m².
kysy mika.tilli@rhg.fi. 040 7013005
| Kohdenumero: 12796 |
| Osoite: Ansatie 4, 01740 Vantaa |
| Pinta-ala: 2 687 m² |
| Uudisrakennus: Ei |
| Osakehuoneisto: Ei |
| Parveke: Ei |
| Kaavoitus: Asemakaava |
| Energialuokka: ei |
| Asbestikartoitus: Ei |
| Tupakointi: Ei |
