Yliopistonkatu 31, 20100 Turku

Toimistotila
225 m²
5 175,00 €

Vuokrattavana toimitilat Turun ydinkeskustassa, osoitteessa Yliopistonkatu 31.
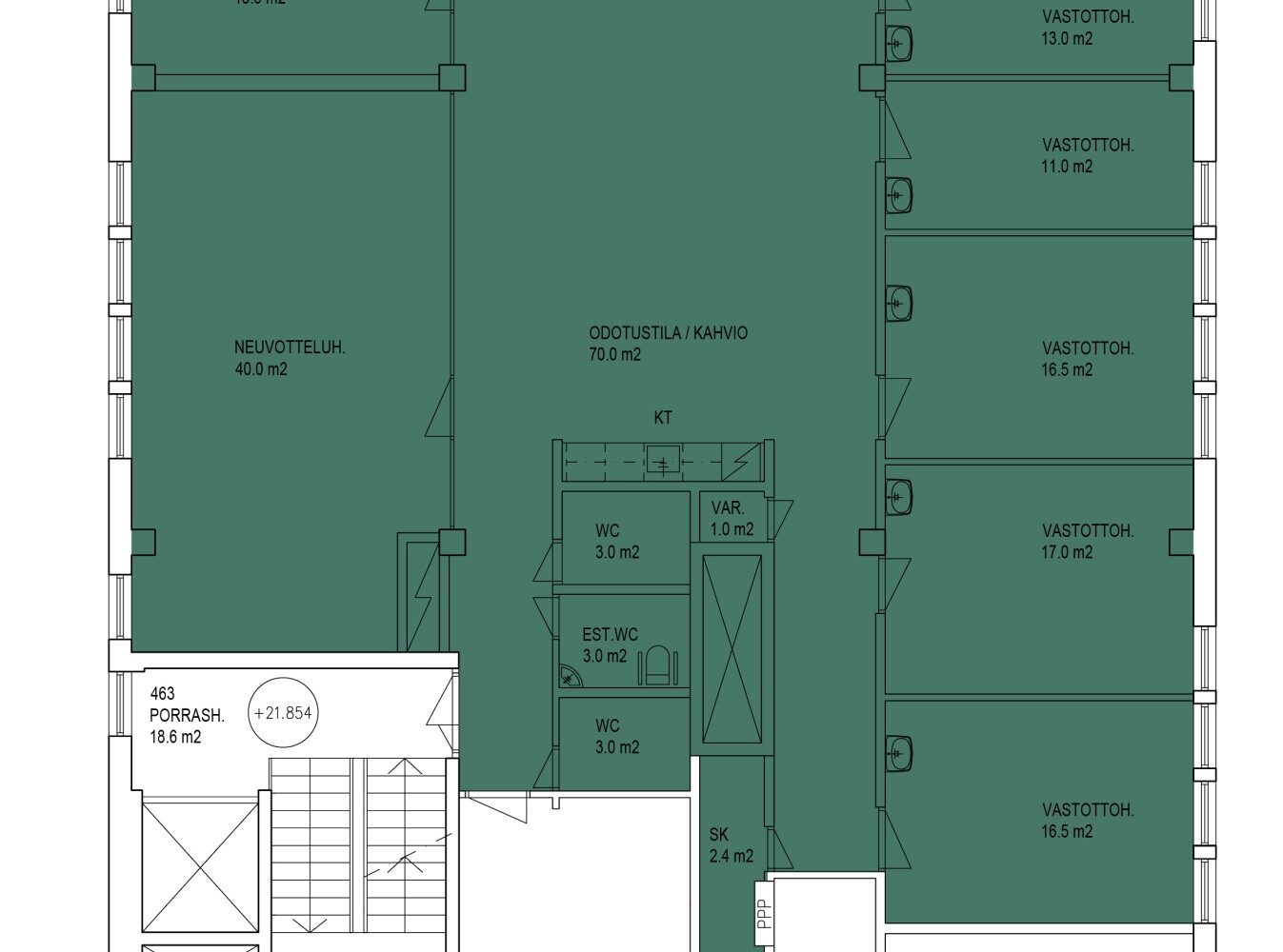
Neljännen kerroksen tilakokonaisuus on kooltaan noin 225 m² ja sisältää avotilan lisäksi viisi vastaanotto- tai toimistohuonetta, kaksi neuvotteluhuonetta sekä kolme WC-tilaa, joista yksi on esteetön. Tilat ovat muunneltavissa vuokralaisen tarpeiden mukaan.
Tiloissa toimii tällä hetkellä työterveys palveluita tarjoava yritys.
Kiinteistön kellarissa on polkupyöräsuoja, jossa käytettävissä vaatekaapit ja suihkutilat. Autopaikkoja on mahdollista vuokrata kiinteistön autohallista.

Vuokrapyyntö on 5 175,00 euroa kuukaudessa + alv. Sähkö, jäähdytys ja kaukokylmä veloitetaan kulutuksen mukaan.
Tilat vapautuvat 1.12.2025.

Kohteella ei ole lain edellyttämää energiatodistusta, joten energialuokka ei ole tiedossa.

Lisää toimistotiloja osoitteessa www.rhg.fi.

Perustiedot

Kohdenumero: 12690
Osoite: Yliopistonkatu 31, 20100 Turku
Huoneiston nro: 23a
Pinta-ala: 225 m²
Kerros: 4.krs
Uudisrakennus: Ei
Osakehuoneisto: Kyllä

Hinnat ja kustannukset

Kuukausivuokra: 5 175,00 €

Tilojen varustus

Parveke: Ei

Lisätiedot

Energialuokka: ei
Asbestikartoitus: Ei
Tupakointi: Ei

Saatavuus

Kohteen vapautuminen: Vapautuu 1.12.2025

Kysy lisää tästä kohteesta

Tony Rosenblad
Tony Rosenblad Toimitilavälittäjä tony.rosenblad@rhg.fi +358 50 551 5375
* vaaditut kentät