Satamakatu 22, 20100 Turku

Toimistotila
330 m²

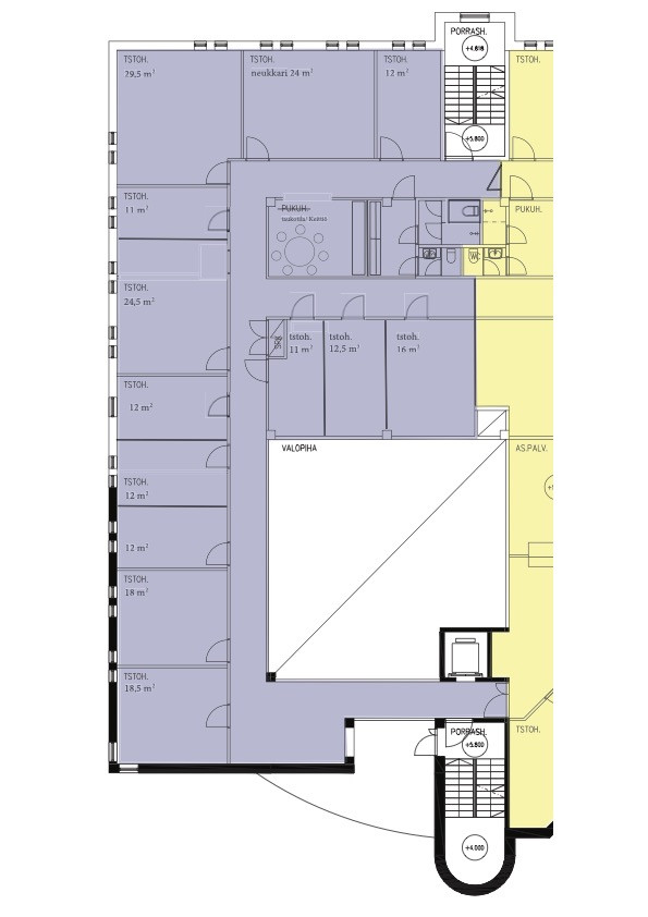
Vuokrattavana Turun sataman läheisyydestä 2.krs 330m2 toimistotila, joka pitää sisällään 13 erikokoista huonetta sekä lisäksi oman keittiön, suihkun ja wc-tilan.
Toimistossa on koneellinen ilmanvaihto sekä huonekohtainen
jäähdytys.

Sisäänkäynti rakennukseen katutasolta, toimisto sijaitsee rakennuksen toisessa kerroksessa, jonne pääsee hissillä.

Kohde sijaitsee Turun linnan kupeessa Turun satama-alueella hyvien
julkisten liikenneyhteyksien varrella lähellä Turun keskusta-aluetta ja
palveluita.

Vuokralaisella on käytössään kiinteistön pihalta tarpeen mukaan pistokkeellinen autopaikka. Piha-alueella on yhteensä 78 autopaikkaa.
Vapautuu sopimuksen mukaan.

Perustiedot

Kohdenumero: 9636
Osoite: Satamakatu 22, 20100 Turku
Pinta-ala: 330 m²
Kokonaispinta-ala: 380 m²
Uudisrakennus: Ei
Osakehuoneisto: Kyllä

Tilojen varustus

Parveke: Ei

Lisätiedot

Energialuokka: ei
Asbestikartoitus: Ei
Tupakointi: Ei

Saatavuus

Kohteen vapautuminen: Heti vapaa

Kysy lisää tästä kohteesta

Tony Rosenblad
Tony Rosenblad Toimitilavälittäjä tony.rosenblad@rhg.fi +358 50 551 5375
* vaaditut kentät