Messinkikatu 2, 20380 Turku

Tuotantotila
2 608 m²

Vuokrattavana 2 608m2 toimitila, kehätien varrella osoitteessa Messinkikatu 1, Turku.
Näkyvä sijainti kehätien välittömässä läheisyydessä Orikedon alueella.
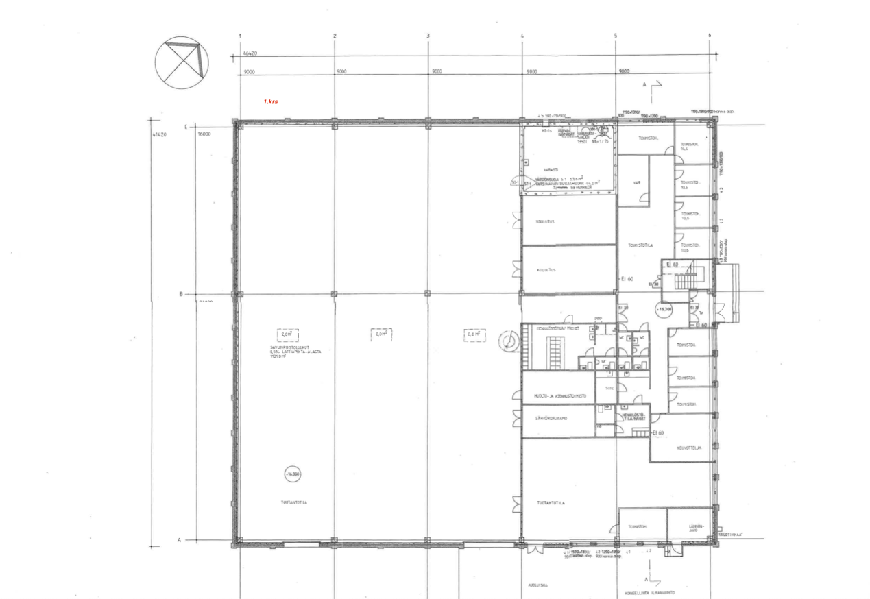
Tilakokonaisuus, jossa katutason kerroksessa on 1 118m2, noin 6 metriä korkeaa hallitilaa, jossa 5 tonnin siltanosturi. Siltanosturin nostokorkeuskapasiteetti vajaa 5 metriä.
Halliin johtaa kaksi nosto-ovea sekä kahdet käyntiovet. Nosto-ovien mitat korkeus 3,5 m x leveys 4 m ja toisen korkeus 3,5 m x leveys 7 m.
Pienemmän nosto-oven edessä korotettu iso lastaustasanne, toisen isomman oven korkeus maasta noin 1 metri.
Samassa kerroksessa sijaitsee n. 745 m² siistissä kunnossa olevat toimisto-, koulutus ja sosiaalitilat. Tiloissa jäähdytys.
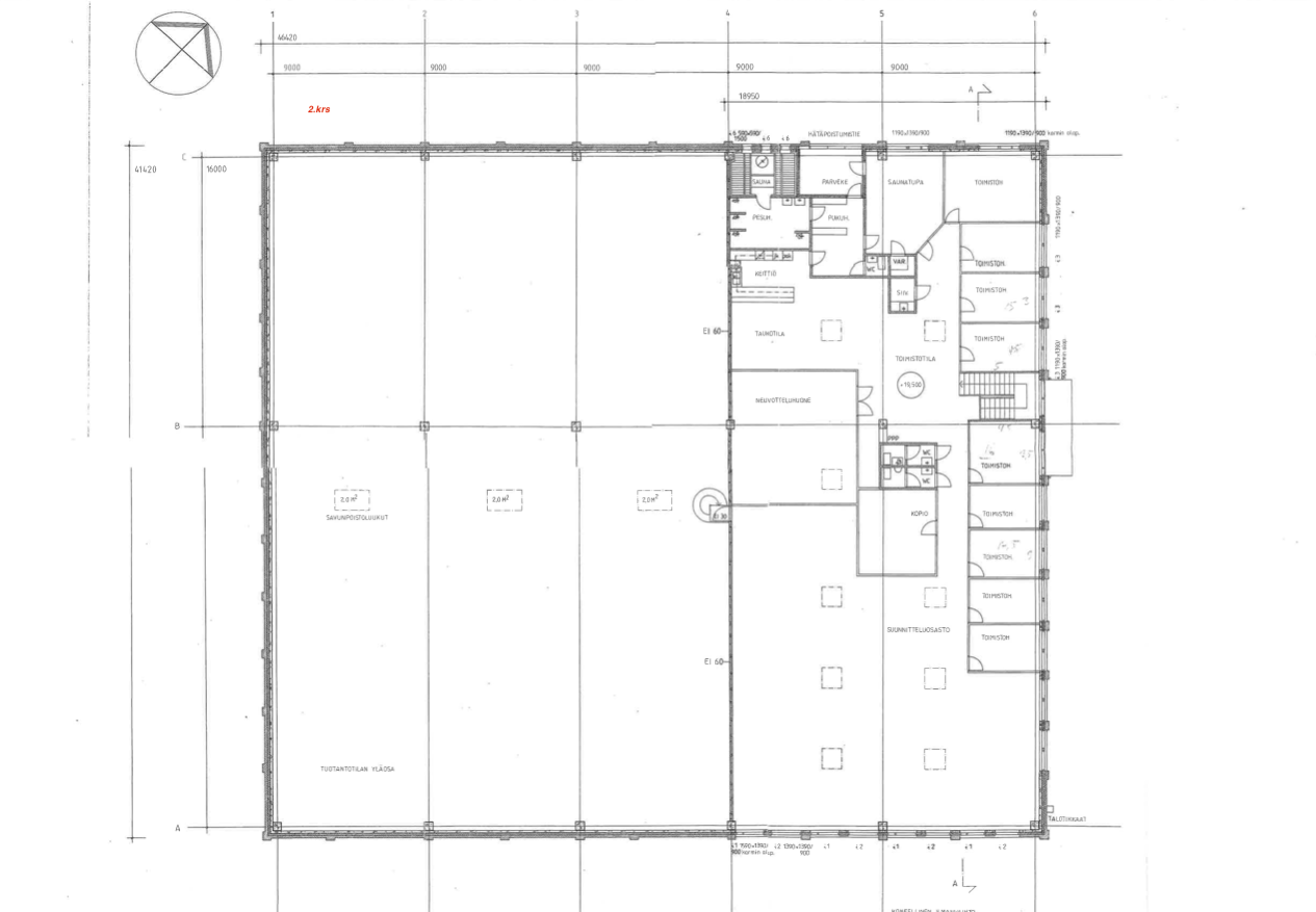
Kiinteistön toisessa kerroksessa on yhdessä tai erikseen vuokrattavana 745 m² toimisto- ja sosiaalitilat. Siisti jäähdytetty tilakokonaisuus, jossa avotilan lisäksi toimistohuoneita, koulutus-, keittiö- ja oleskelutila sekä saunaosasto.
Iso aidattu piha-alue, parkkipaikalla latauspisteitä sähköautoille.

Vapautuu alkuvuonna 2025.

Lisää toimitiloja www.rhg.fi

Perustiedot

Kohdenumero: 11233
Osoite: Messinkikatu 2, 20380 Turku
Pinta-ala: 2 608 m²
Rakennusvuosi: 2000
Uudisrakennus: Ei
Osakehuoneisto: Ei

Tilojen varustus

Parveke: Ei

Lisätiedot

Kaavoituslisätieto: T II : teollisuus- ja varastorakennusten korttelialue
Kaavoitus: Asemakaava
Kerrosluku: 2
Lämmitysjärjestelmä: Kaukolämpö
Energialuokka: ei
Rakennusmateriaali: Betoni / tiili
Tontin pinta-ala: 8 m²
Liittymät: Kunnallistekniikka
Asbestikartoitus: Ei
Tupakointi: Ei

Saatavuus

Kohteen vapautuminen: Vapautuu 1.3.2025

Kysy lisää tästä kohteesta

Tony Rosenblad
Tony Rosenblad Toimitilavälittäjä tony.rosenblad@rhg.fi +358 50 551 5375
* vaaditut kentät