Aurakatu 12b, 20100 Turku

Toimistotila
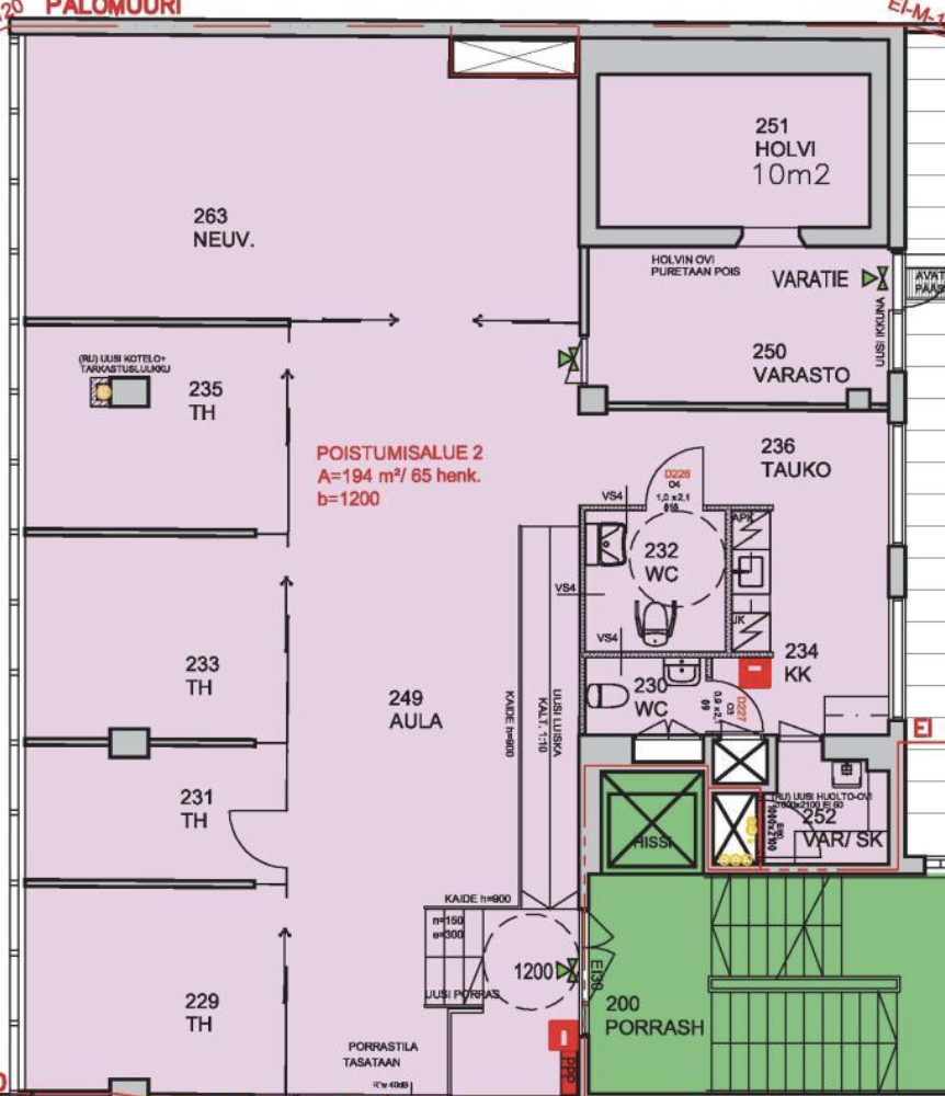
194 m²

Vuokrattavana 194 m² toimistotila Turun ydinkeskustasta, Aurakadun ja Yliopistonkadun kulmasta, aivan Kauppatorin kupeesta, osoitteessa Aurakatu 12b, Turku

Toimistotila sijaitsee kiinteistön toisessa kerroksessa, ja siitä avautuvat upeat näkymät Kauppatorin suuntaan. Tilakokonaisuus sisältää useita työhuoneita, avointa työskentelytilaa, keittiön, taukotilat sekä WC-tilat. Tila soveltuu erinomaisesti monenlaiseen toimistokäyttöön.

Tilamuutokset ovat mahdollisia – huoneiden määrää ja kokoa voidaan muokata suunnitellun käyttötarkoituksen mukaan. Muutokset toteutetaan aina vuokralaisen toiveiden ja tarpeiden mukaisesti yhteistyössä suunnittelutiimin kanssa.

Pysäköinti on järjestettävissä Toriparkissa tai kiinteistön sisäpihan hallipaikoilla saatavuuden mukaan.

Kauppatorin ja Hansakorttelin monipuoliset palvelut ovat aivan kulman takana, ja julkisen liikenteen yhteydet alueelle ovat erinomaiset.

Vapautuu sopimuksen mukaan

Lisää toimitiloja www.rhg.fi

Ei lain edellyttämää e-todistusta.

Perustiedot

Kohdenumero: 12721
Osoite: Aurakatu 12b, 20100 Turku
Pinta-ala: 194 m²
Kerros: 2.krs
Uudisrakennus: Ei
Osakehuoneisto: Kyllä

Tilojen varustus

Parveke: Ei

Lisätiedot

Energialuokka: Ei lain edellyttämää energiatodistusta
Asbestikartoitus: Ei
Tupakointi: Ei

Saatavuus

Kohteen vapautuminen: Heti vapaa

Tontin omistus: Vuokra
Energialuokka: ei
Hissi: Kyllä

Kysy lisää tästä kohteesta

Tony Rosenblad
Tony Rosenblad Toimitilavälittäjä tony.rosenblad@rhg.fi +358 50 551 5375
* vaaditut kentät