Toimistotila Saippua Centeristä hyvältä sijainnilta noin 2 kilometrin etäisyydeltä Turun keskustasta.
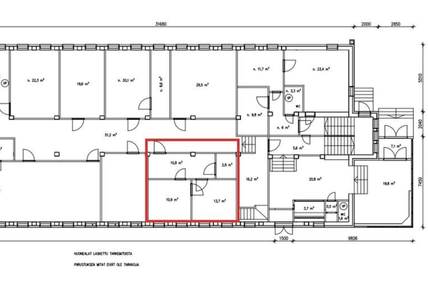
Heti vapaa 38 m² toimistotila Saippua Centerissä. Tila koostuu kahdesta erillisestä huoneesta ja omasta wc:stä. Vuokralaisten käytössä on siisti yhteiskeittiö.
Vuokra 10,5 €/m2 + hoitovuokra 2,69 €/m2 + alv.
| Kohdenumero: 13136 |
| Osoite: Artturinkatu 2, 20200 Turku |
| Maakunta: Varsinais-Suomi |
| Pinta-ala: 38 m² |
| Uudisrakennus: Ei |
| Osakehuoneisto: Ei |
| Kuukausivuokra: 399,00 € |
| Muut kustannukset: Hoitovuokra 2,69 €/m2 |
| Keittiö: Ei kiettiötä |
| WC: Oma wc |
| Kaavoitus: Asemakaava |
| Energialuokka: ei |
| Asbestikartoitus: Ei |
| Tupakointi: Ei |
