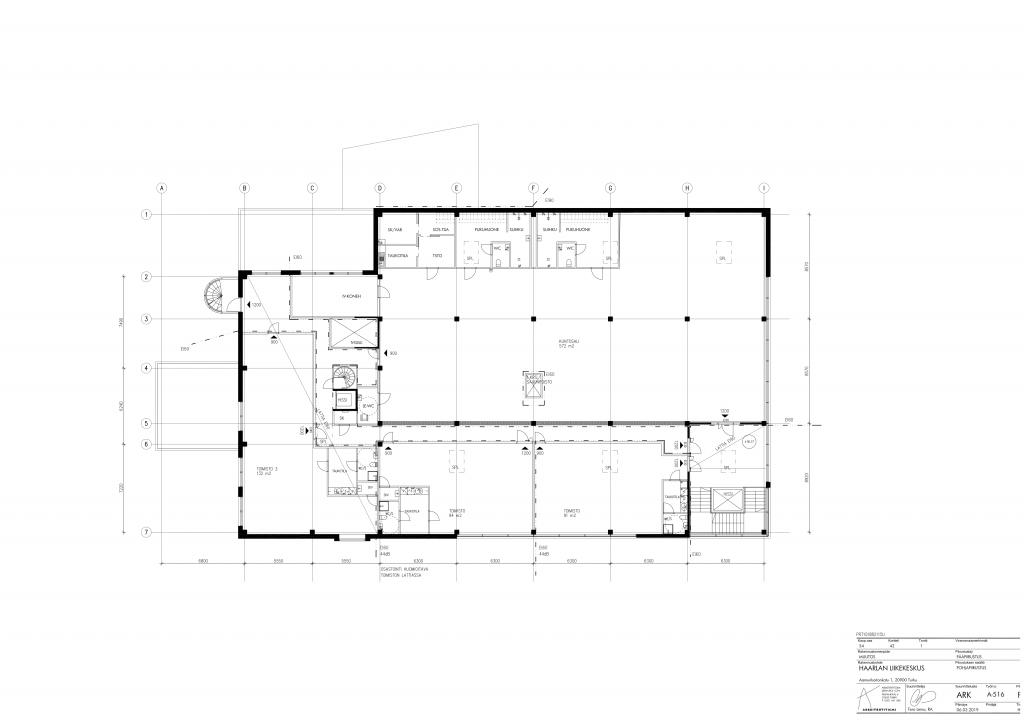
Vuokrattavana syksyllä 2019 valmistuvat, 317 m2 toimistotilat, Haarlan liikekeskuksen yläkerrassa osoitteessa Aamukoitonkatu 1, Turku.
Tilat jaettavissa 91m2 / 94m2 / 132m2 osiin.
Kohdetta sanerataan parhaillaan ja tuleva vuokralainen pystyy vaikuttamaan pohjaratkaisuun sekä tuleviin pintamateriaaleihin.
Kiinteistössä toimii ruokakauppa, ravintola ym.
Iso parkkipaikka talon edessä
Valmistuu syksyn 2019 aikana.
| Kohdenumero: 5841 |
| Osoite: Aamunkoitonkatu 1, 20900 Turku |
| Maakunta: Varsinais-Suomi |
| Pinta-ala: 91 m² |
| Uudisrakennus: Ei |
| Kaupunginosa: Haarla |
| Osakehuoneisto: Kyllä |
| Parveke: Ei |
| Asbestikartoitus: Ei |
| Tupakointi: Ei |
