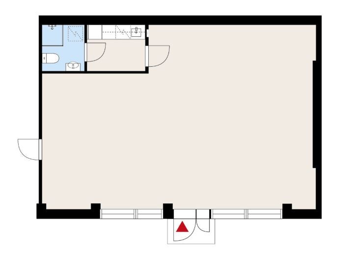
Läheltä Prisma-keskusta vuokrattavissa 89 m2 katutason liiketila, joka sopii erinomaisesti esimerkiksi kauneushoitolaksi. Tilassa on omat keittiö- ja wc-tilat. Tilasta on ikkunat suoraan vilkaalle Sammonkadulle päin, mikä takaa erinomaisen näkyvyyden. Ratikkalinja kulkee aivan vierestä.
Lisää kohteita www.rhg.fi
| Kohdenumero: 13018 |
| Osoite: Sammonkatu 66, 33540 Tampere |
| Maakunta: Pirkanmaa |
| Pinta-ala: 89 m² |
| Kokonaispinta-ala: 89 m² |
| Kerros: Katutaso |
| Uudisrakennus: Ei |
| Kaupunginosa: Kalevanrinne |
| Osakehuoneisto: Kyllä |
| Energialuokka: ei |
| Asbestikartoitus: Ei |
| Tupakointi: Ei |
