Tampereen ydinkeskustassa erinomaisella paikalla sijaitsevasta vuonna 2010 valmistuneesta modernista toimistotalosta vapautumassa siistiä ylimmän kerroksen toimistotilaa.
Katutasossa lounasravintola ja kellarissa parkkihalli.
Lisätiedot: 0407013005. mika.tilli@rhg.fi
Lisää kohteita www.rhg.fi
| Kohdenumero: 8379 |
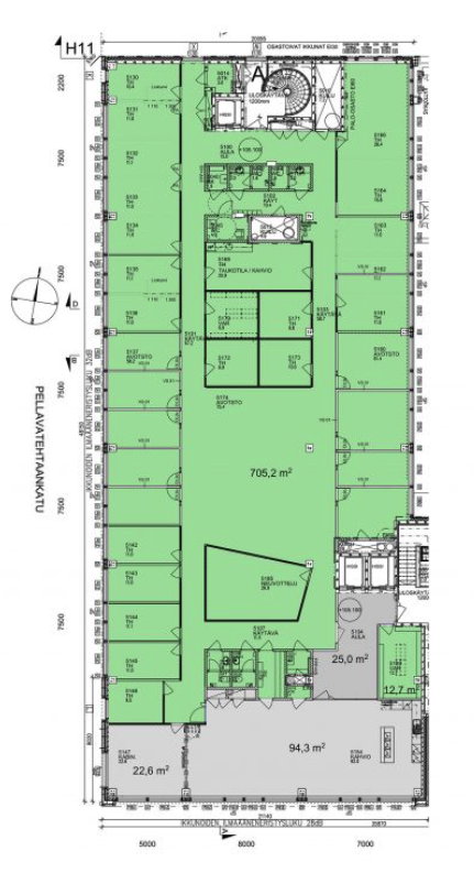
| Osoite: Pellavatehtaankatu 25, 33100 Tampere |
| Maakunta: Pirkanmaa |
| Pinta-ala: 717 m² |
| Uudisrakennus: Ei |
| Osakehuoneisto: Kyllä |
| Parveke: Ei |
| Energialuokka: ei |
| Asbestikartoitus: Ei |
| Tupakointi: Ei |
