Ilmailunkatu 3, 33900 Tampere

Varasto
7 200 m²

Vuokrataan kokonainen logistiikkakiinteistö erinomaisella sijainnilla Härmälän/Sarankulman teollisuus- ja liikealueella, Tampereen kehätien sekä Helsinki-Tampere moottoritien välittömässä läheisyydessä. Tilat soveltuvat sekä varastointiin että tuotannolliseen toimintaan.

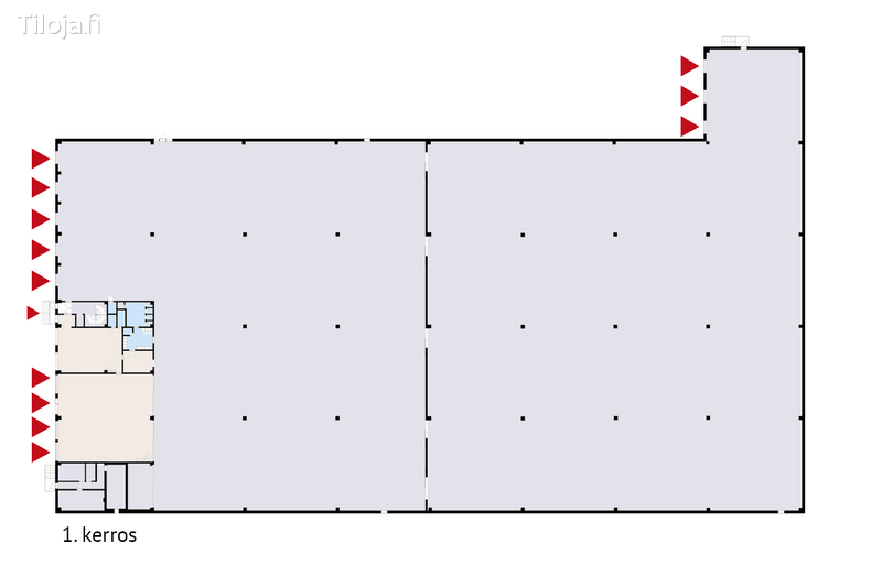
Varastotilaa on 1. kerroksessa noin 6600 m², joka jaettavissa 3570m², 2200m² ja 880m². Vapaa korkeus on n. 7 m. Käytössä on kahdeksan lastaustaskua sekä neljä lämpimään lastaustilaan johtavaa nosto-ovea. Toimisto- ja sosiaalitilat kahdessa kerroksessa 135+217 m². Lisäksi 2. kerroksessa parvivarasto 213 m². Pohjakuvat ovat suuntaa antavia.

Käytettävissä on myös asfaltoitu ja aidattu piha-alue, jota on tarvittaessa mahdollista laajentaa. Kysy lisätietoja ja sovi henkilökohtainen tutustumiskäyntisi kohteeseen!

Lisätiedot mika.tilli@rhg.fi 040 7013005

Perustiedot

Kohdenumero: 12994
Osoite: Ilmailunkatu 3, 33900 Tampere
Maakunta: Pirkanmaa
Pinta-ala: 7 200 m²
Kokonaispinta-ala: 7 200 m²
Uudisrakennus: Ei
Kaupunginosa: Härmälä
Osakehuoneisto: Kyllä

Lisätiedot

Energialuokka: ei
Asbestikartoitus: Ei
Tupakointi: Ei

Kysy lisää tästä kohteesta

Mika Tilli
Mika Tilli Välittäjä, LKV mika.tilli@rhg.fi 0407013005
* vaaditut kentät