Prosessikatu 27, 21100 Naantali

Tuotantotila
138 m²

Vuokrattavana 138 m² toimitila Naantalin Luolalan teollisuusalueelta osoitteessa Prosessikatu 27, Naantali.
Rakentaminen on alkamassa tänä keväänä, ja tila valmistuu marraskuuhun 2026 mennessä.

Hallitila on pinta-alaltaan 138 m², ja sen korkeus on noin 6 metriä. Tilassa lastauslaituri yhteys.
Sähköisen nosto-oven mitat ovat 4,5 m x 5 m (leveys x korkeus). Lisäksi tilassa on erillinen käyntiovi. Hallissa on kahdet lattiakaivoa.
Hallissa löytyvät wc-tila valmiudet.

Hallin mitat ovat syvyydeltään 20 metriä ja leveydeltään 7 metriä.

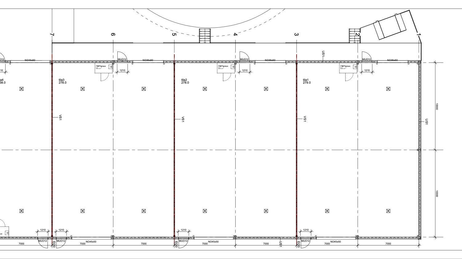
Pohjakuvassa kyseessä on halli numero 5.

Kysy lisätietoja!

Lisää toimitiloja: www.rhg.fi

Perustiedot

Kohdenumero: 13305
Osoite: Prosessikatu 27, 21100 Naantali
Pinta-ala: 138 m²
Rakennusvuosi: 2026
Uudisrakennus: Kyllä
Osakehuoneisto: Ei

Lisätiedot

Kaavoitus: Asemakaava
Kattotyyppi: Pulpetti
Lämmitysjärjestelmä: Sähkö
Energialuokka: ei
Asbestikartoitus: Ei
Tupakointi: Ei

Saatavuus

Kohteen vapautuminen: Vapautuu 30.11.2026

Kysy lisää tästä kohteesta

Tony Rosenblad
Tony Rosenblad Toimitilavälittäjä tony.rosenblad@rhg.fi +358 50 551 5375
* vaaditut kentät