Prosessikatu 27, 21100 Naantali

Tuotantotila
103 m²

Vuokrattavana 103 m² toimitila Naantalin Luolalan teollisuusalueelta osoitteessa Prosessikatu 27, Naantali.

Rakentaminen on alkamassa tänä keväänä, ja tila valmistuu marraskuuhun 2026 mennessä.

Hallitila on yhteensä 103 m², ja se on noin 6 metriä korkea. Sähköisen nosto-oven mitat ovat lev 4,5 m x kork. 5 m, ja sen lisäksi tilassa on erillinen käyntiovi. Hallissa on lattiakaivo.

Tilassa sijaitsee myös kiinteistön 20 m² väestönsuoja, jota voidaan sopimuksen mukaan käyttää erillisenä varastona. Hallista löytyvät valmiit wc-tilat.

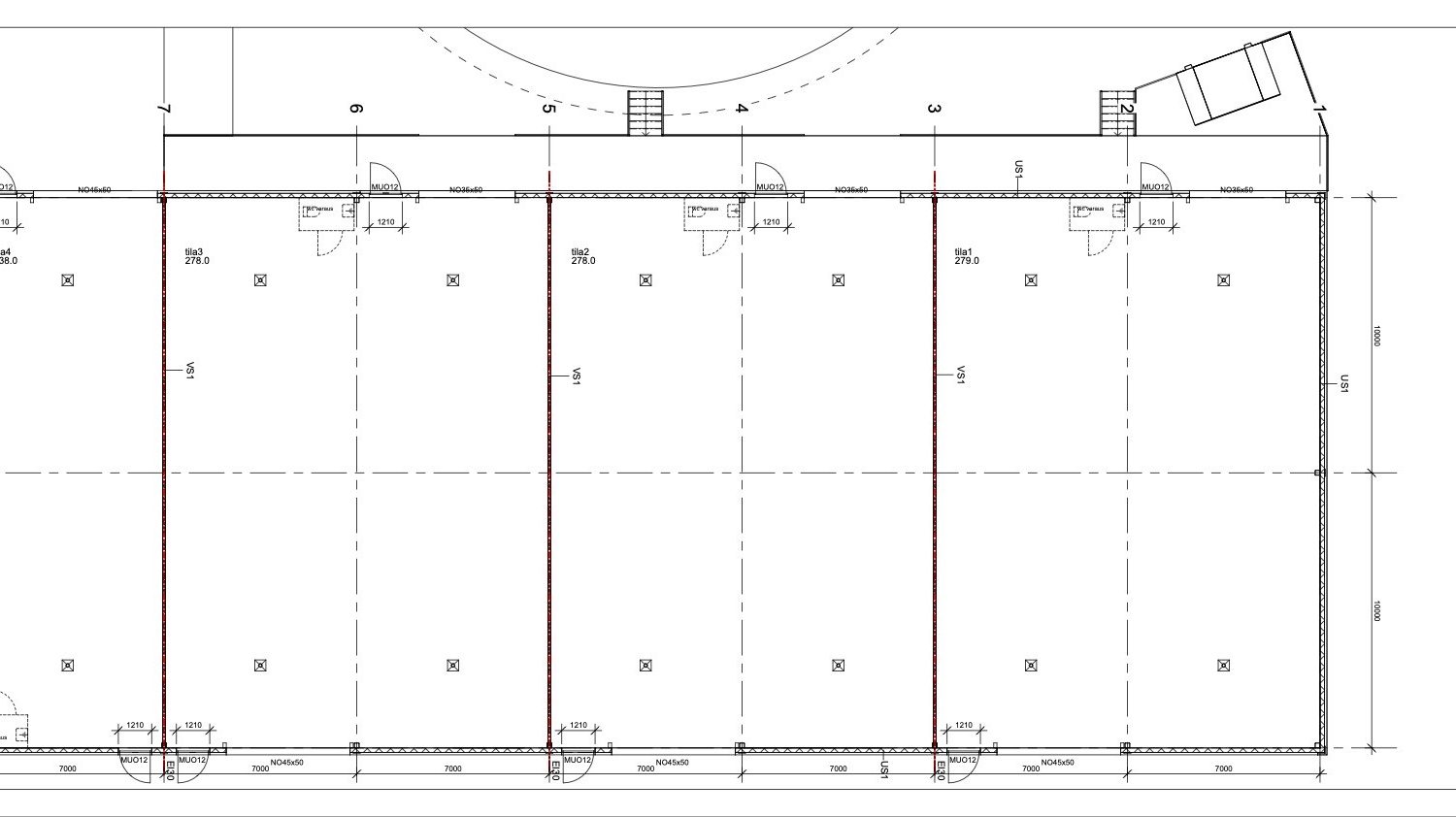
Hallin mitat ovat syvyydeltään 20 metriä ja leveydeltään 7 metriä.

Pohjakuvassa halli numero 6.

Kysy lisätietoja!

Lisää toimitiloja: www.rhg.fi

Perustiedot

Kohdenumero: 13301
Osoite: Prosessikatu 27, 21100 Naantali
Pinta-ala: 103 m²
Rakennusvuosi: 2026
Uudisrakennus: Kyllä
Osakehuoneisto: Ei

Lisätiedot

Kaavoitus: Asemakaava
Kattotyyppi: Pulpetti
Lämmitysjärjestelmä: Sähkö
Energialuokka: ei
Asbestikartoitus: Ei
Tupakointi: Ei

Saatavuus

Kohteen vapautuminen: Vapautuu 30.11.2026

Kysy lisää tästä kohteesta

Tony Rosenblad
Tony Rosenblad Toimitilavälittäjä tony.rosenblad@rhg.fi +358 50 551 5375
* vaaditut kentät