Isosuontie 18, 21250 Masku

Varasto
210 m²
1 680,00 €

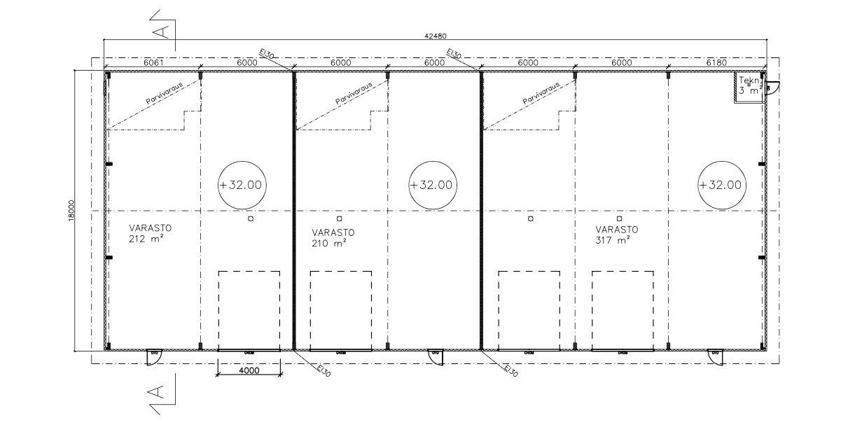
Uutta, elokuussa 2025 valmistunut hallitila Maskun ja Raision rajalla. Rakennuksen pinta-ala on 760 m², joka on jaettavissa kolmeen osaan (noin 200 m2 ja 300 m2 hallit). Hallin huoneistoala on 748 m2.

Hallin sisäkorkeus on 6 metriä. Hallissa on 4 metriä leveät 5 metriä korkeat sähkökäyttöiset nosto-ovet. Lämmitysmuotona on maalämpö lattialämmityksellä, ja lattiakaivot on varustettu öljynerotuksella. Tiloissa on varaus parvirakentamiselle.

Kiinteistö sijaitsee Kustavintien ja Isosuontien risteyksessä lähellä Rauman valtatietä (E8). Iso ja kovapohjainen piha soveltuu hyvin raskaalle kalustolle. Viereinen noin 1 hehtaarin tontti on mahdollista vuokrata vaikka kaluston säilytykseen. Vuokrattavana olevan hallin edustallakin on hyvin tilaa kalustolle.

Vuokra 7,50 - 8,00 €/m2 riippuen vuokrattavasta pinta-alasta. Vuokra sisältää lämmityksen. Sähkö, vesi ja alv lisätään vuokraan.

Kuvista puuttuu vielä tiloja jakavat seinät.

Halli osto on myös mahdollista.

Perustiedot

Kohdenumero: 12335
Osoite: Isosuontie 18, 21250 Masku
Maakunta: Varsinais-Suomi
Huoneiden kuvaus: Hallitila
Pinta-ala: 210 m²
Rakennusvuosi: 2025
Uudisrakennus: Kyllä
Osakehuoneisto: Ei

Hinnat ja kustannukset

Kuukausivuokra: 1 680,00 €

Tilojen varustus

Parveke: Ei

Lisätiedot

Ilmanvaihto: Poistoilmatuuletus
Kaavoitus: Asemakaava
Lämmitysjärjestelmä: Maalämpö
Energialuokka: ei
Asbestikartoitus: Ei
Tupakointi: Ei

Kysy lisää tästä kohteesta

Juho Viljanen
Juho Viljanen LKV juho.viljanen@rhg.fi 040 741 7522
* vaaditut kentät