Askonkatu 9, 15100 Lahti

Toimistotila
208 m²

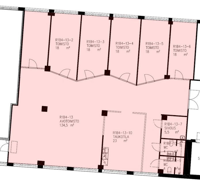
Askotalosta vuokrattavana hyväkuntoinen toimisto (208 m2). 4.kerroksessa sijaitsevassa läpitalon toimistossa on avotilan lisäksi 6 huonetta, taukotila/ keittiö ja sosiaalitilat.
Uniikki ja nopeasti kehittyvä Askonalue tarjoa erilaisia tilaratkaisuja. Teollisuushenkisestä kiinteistöstä löytyy ainutlaatuisesti uudistettuja tiloja sekä ns raakaa tilaa, joka räätälöidään asiakkaan tarpeiden mukaan. Vuokralaisia ja heidän vieraita palvelee kaksi ravintolaa ja kokouskeskus. Kohteesta löytyy myös pyöräparkki sekä suihku- ja pukutilat.

Perustiedot

Kohdenumero: 13309
Osoite: Askonkatu 9, 15100 Lahti
Huoneiden kuvaus: Avotila + 6 h
Pinta-ala: 208 m²
Uudisrakennus: Ei
Kaupunginosa: Askonalue
Osakehuoneisto: Kyllä

Lisätiedot

Energialuokka: ei
Asbestikartoitus: Ei
Tupakointi: Ei

Kysy lisää tästä kohteesta

Heli Reinberg
Heli Reinberg heli.reinberg@rhg.fi 040 647 4900
* vaaditut kentät