Valimotie 10, 00380 Helsinki

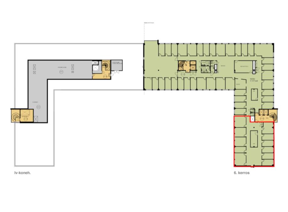
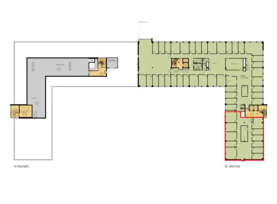
Toimistotila
248 m²

Vuokrataan 248m2 viihtyisää toimistotilaa kuudennessa kerroksessa. Tarvittaessa remontit ja tilamuutokset toteutetaan vuokralaisen toiveiden mukaisesti. Vuokrattavissa myös koko kerros, joka jatkuu Hiomotie 3:n puolelle (3. ja 4.) 2978 m2 ja 2341 m2.

Vuokralaisia palvelee Valimotie 13 A:ssa sijaitseva aulapalvelu, josta hoituu myös postien vastaanotto, edelleenlähetys sekä pakettipalvelut. Katutasossa runsaan lounaan arkipäivisin tarjoilee Ravintola Factory. Valimotie 10 rakennuksessa sijaitsevat olympiakaupunkien mukaan nimetyt neuvottelutilat: Calgary, Montreal, Nagano, Peking, Salt Lake, Soul ja Tokio

Kysy lisää Jouko Raitanen Helsinki puh. 0504695444

Perustiedot

Kohdenumero: 8121
Osoite: Valimotie 10, 00380 Helsinki
Maakunta: Uusimaa
Pinta-ala: 248 m²
Uudisrakennus: Ei
Kaupunginosa: Pitäjänmäki
Osakehuoneisto: Kyllä

Tilojen varustus

Parveke: Ei

Lisätiedot

Asbestikartoitus: Ei
Tupakointi: Ei

Kysy lisää tästä kohteesta

Jouko Raitanen
Jouko Raitanen jouko.raitanen@rhg.fi 050 469 5444
* vaaditut kentät