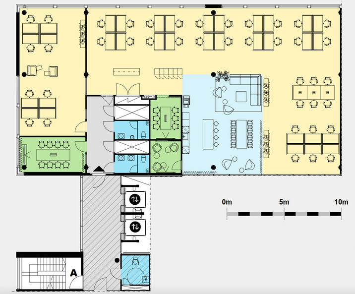
Vuokrattavana 4. kerroksen toimistotila ( 395 m2), jossa avotilan lisäksi neuvottelutila ja iso keittiö- lounge. Pasilan Visiosta löytyy kattava palveluvalikoima ml aulapalvelu, vuokrattavat neuvottelutilat, kuntosali, lounasravintola. Paikalle pääse helposti sekä julkisilla että omalla autolla.
Kysy lisää sp: heli.reinberg@rhg.fi.
| Kohdenumero: 10150 |
| Osoite: Televisiokatu 4, 00240 Helsinki |
| Pinta-ala: 395 m² |
| Uudisrakennus: Ei |
| Kaupunginosa: Pasila |
| Osakehuoneisto: Kyllä |
| Parveke: Ei |
| Energialuokka: ei |
| Asbestikartoitus: Ei |
| Tupakointi: Ei |
