Siltasarenkatu 10, 00530 Helsinki

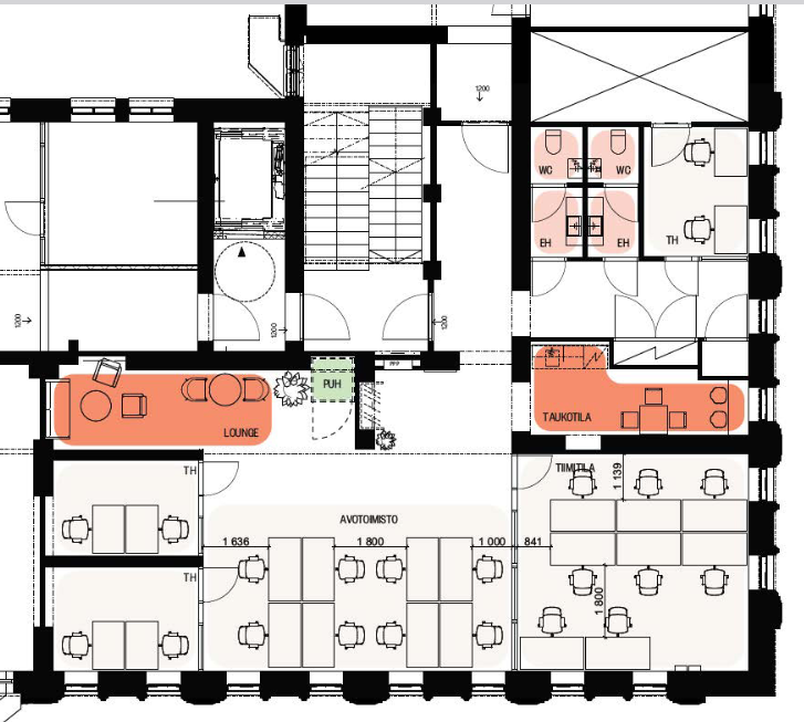
Toimistotila
178 m²

Vuokrattavana moderni muuttovalmis toimisto ( 178 m2) Siltasaari 10:stä. Kohde tarjoaa yrityksille viihtyisän ja inspiroivan työympäristön ja yksilölliset työtilat Hakaniemen sydämessä.
Kiinteistöstä löytyy aulapalvelu, vuokrattavia neuvottelutiloja, laadukas ravintolakeskittymä ( (mm. The Pantry sekä Bistro Le Coin), polkupyörähalli, oma parkkihalli, suihkulliset sosiaalitilat, sähköauton ja -pyörän latauspiste.
Kohde sijaitsee erinomaisten julkisten liikenneyhteyksien varrella.

Perustiedot

Kohdenumero: 13248
Osoite: Siltasarenkatu 10, 00530 Helsinki
Huoneiden kuvaus: Avo-/kombitoimisto
Pinta-ala: 178 m²
Uudisrakennus: Ei
Kaupunginosa: Hakaniemi
Osakehuoneisto: Kyllä

Lisätiedot

Energialuokka: ei
Asbestikartoitus: Ei
Tupakointi: Ei

Kysy lisää tästä kohteesta

Heli Reinberg
Heli Reinberg heli.reinberg@rhg.fi 040 647 4900
* vaaditut kentät