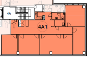
Salmisaaren Liiketalosta vuokrattavana toimistotila (157 m2). Tila sijaitsee 4.kerroksessa ja käsittää 5 huonetta.
Kohde sijaitsee vastapäätä Ruoholahden kauppakeskusta, mihin pääsee myös parkkihallin kautta.
Hyvät julkiset liikenneyhteydet. Ruoholahden metroasema on kävelymatkan päässä.
Autopaikkoja vuokrattavana sekä kiinteistön pysäköintihallista, että kauppakeskuksen parkkihallista
| Kohdenumero: 13279 |
| Osoite: Porkkalankatu 7, 00180 Helsinki |
| Huoneiden kuvaus: 5 huonetta |
| Pinta-ala: 157 m² |
| Uudisrakennus: Ei |
| Kaupunginosa: Ruoholahti |
| Osakehuoneisto: Kyllä |
| Energialuokka: ei |
| Asbestikartoitus: Ei |
| Tupakointi: Ei |
