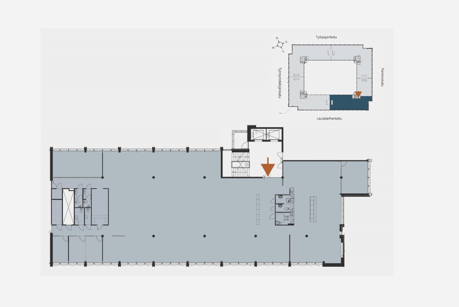
Vuokrataan upea valoisa 786m2 toimistotila, joka sijaitsee Troolin A-rapun kolmannessa kerroksessa on vuonna 2019 täysin remontoitu.
Tila on pääosin avotilaa, siinä on hieno aula ja tyylikäs keittiö. Lisäksi tilassa on toimivat neuvotteluhuoneet (3 x 2-4 hlö, 1 x 7-8 hlö, 1 x 14 hlö, 1 x 15 hlö). Ikkunoista avautuvat näkymät Suvilahteen ja kiinteistön sisäpihalle. Autopaikoitus löytyy autohallista.
Kysy lisää Jouko Raitanen Helsinki puh. 0504695444
| Kohdenumero: 11620 |
| Osoite: Panimokatu 2 A, 00580 Helsinki |
| Maakunta: Uusimaa |
| Pinta-ala: 786 m² |
| Uudisrakennus: Ei |
| Kaupunginosa: Kalasatama |
| Osakehuoneisto: Kyllä |
| Parveke: Ei |
| Energialuokka: ei |
| Asbestikartoitus: Ei |
| Tupakointi: Ei |
