Mekaanikonkatu 1, 00800 Helsinki

Varasto
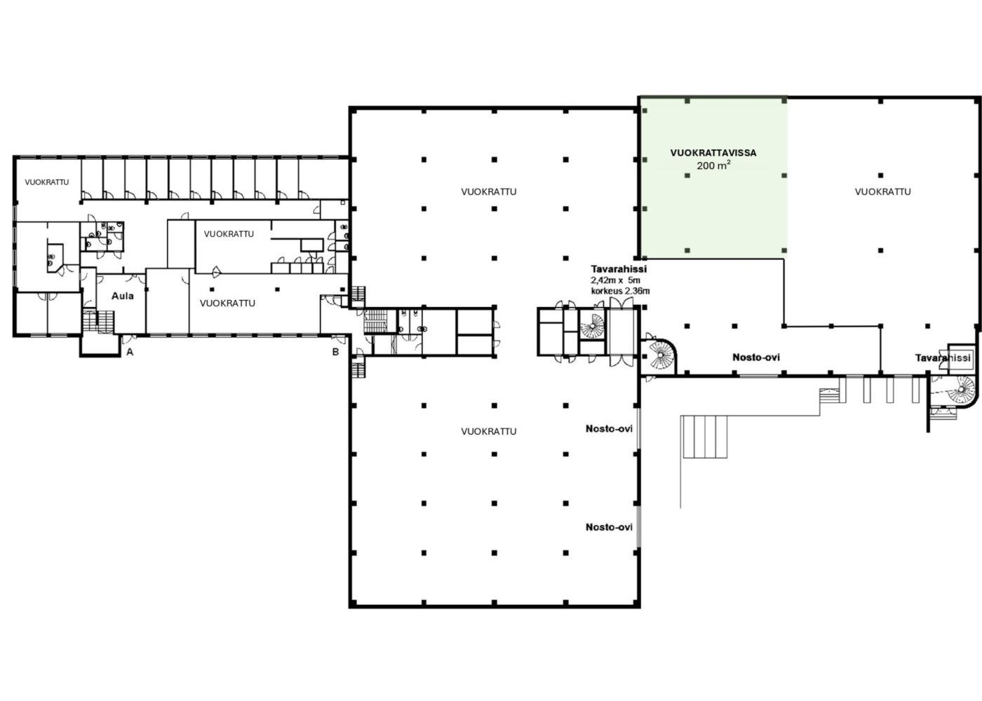
200 m²

Vuokrataan noin 200 m2 varastotila erinomaisella sijainnilla Herttoniemessa. Tila sijaitsee kiinteistön ensimmäisessä kerroksessa ja sen vapaa korkeus on noin 6 metriä, mikä mahdollistaa tehokkaan varastoinnin ja tilan monipuolisen hyödyntämisen. Käytössä on lastauslaituriyhteys, joka tukee sujuvaa tavaraliikennettä, ja tila on esteetön.

Kokonaisuus vuokrataan yhdessä 182 m2 toimistotilan kanssa, joka sijaitsee kiinteistön toisessa kerroksessa. Ratkaisu mahdollistaa varasto- ja toimistotoimintojen yhdistämisen saman katon alle, mikä tehostaa arjen logistiikkaa ja henkilöstön työskentelyä.

Lisäksi on mahdollisuus saada tila valmiiksi hyllytettynä, kiinteistöltä on saatavilla lisähyllyjä käyttäjän tarpeiden mukaisesti.

Kysy lisää: jouko.raitanen@rhg.fi/0504695444

Perustiedot

Kohdenumero: 13162
Osoite: Mekaanikonkatu 1, 00800 Helsinki
Pinta-ala: 200 m²
Uudisrakennus: Ei
Kaupunginosa: Herttoniemi
Osakehuoneisto: Kyllä

Lisätiedot

Energialuokka: ei
Asbestikartoitus: Ei
Tupakointi: Ei

Kysy lisää tästä kohteesta

Jouko Raitanen
Jouko Raitanen jouko.raitanen@rhg.fi 050 469 5444
* vaaditut kentät