Lemuntie 3-5, 00510 Helsinki

Toimistotila
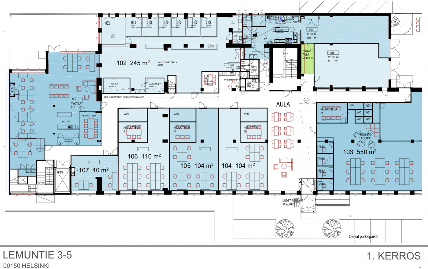
104 m²

Vuokrataan ensimmäisen kerroksen 104m2 toimistotila erinomaisella sijainnilla Vallilassa. Vallilan Akseli & Elina on tunnettu etenkin designin, teollisen muotoilun sekä muiden luovien alojen yrityksistä. Kiinteistön tiloissa yhdistyvät kiehtovalla tavalla mennyt, nykyisyys ja tuleva.

Rakennukset ovat toimineet aiemmin radioverstaana sekä linja-autojen koritehtaana.Tilat ovat saneerattuja ja siistejä. Kiinteistössä on lisäksi suosittu Antell lounasravintola. Kiinteistöön on helppo tulla myös pyörällä tai omalla autolla. Lähin parkkihalli on Elimäenkadun Aimo Park, johon on suora hissisisäänkäynti Nokiantieltä Akselin & Elinan vierestä.

Kysy lisää, Jouko Raitanen puh. 0504695444

Perustiedot

Kohdenumero: 10096
Osoite: Lemuntie 3-5, 00510 Helsinki
Maakunta: Uusimaa
Pinta-ala: 104 m²
Uudisrakennus: Ei
Kaupunginosa: Vallila
Osakehuoneisto: Kyllä

Tilojen varustus

Parveke: Ei

Lisätiedot

Energialuokka: ei
Asbestikartoitus: Ei
Tupakointi: Ei

Kysy lisää tästä kohteesta

Jouko Raitanen
Jouko Raitanen jouko.raitanen@rhg.fi 050 469 5444
* vaaditut kentät