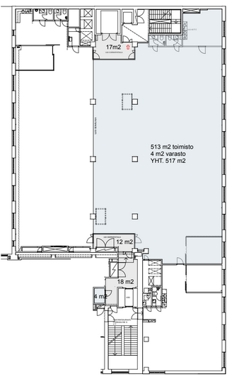
Vuokrattavana 2.kerroksen korkea avotoimisto ( 514 m2)., johon tulee tavarahissi. Tilan isot ruutuikkunat ovat Työpajankadun / Teurastamon suuntaan. Lindström talo tarjoa vuokralaisille kaikki tarvittavat palvelut ml aulapalvelu, vuokrattavat neuvottelutilat, lounasravintola, kuntosali yms.
Kysy lisää sp: heli.reinberg@rhg.fi.
| Kohdenumero: 9975 |
| Osoite: Lautatarhankatu 6, 00580 Helsinki |
| Huoneiden kuvaus: Korkea avotila, tavarahissiyhteys |
| Pinta-ala: 514 m² |
| Uudisrakennus: Ei |
| Kaupunginosa: Sörnäinen |
| Osakehuoneisto: Kyllä |
| Parveke: Ei |
| Energialuokka: ei |
| Asbestikartoitus: Ei |
| Tupakointi: Ei |
