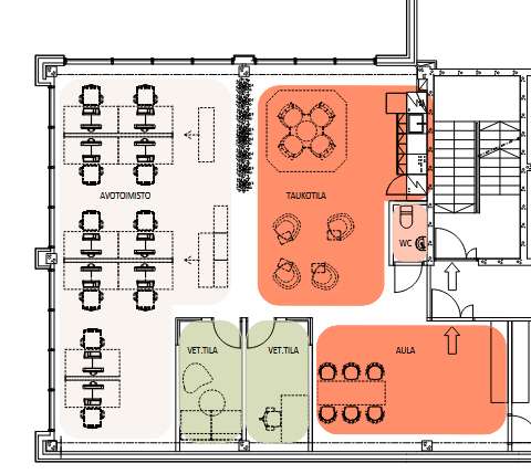
Ruoholahden ytimestä vuokrattavana muuttovalmis toimisto ( 134 m2). Valoisa kulmatila sijaitsee 2.kerrokssa. Avotilan lisäksi tilassa on 2 hiljaisen työkentelyn tila, on oma taukotila/keittiö ja sosiaalitilat. Itämerenkatu 3 löytyy kattavat palvelut ml aulapalvelu, lounasravintola, vuokrattavia neuvottelutiloja, saunatilat ja pyöräparkki. Hyvät julkiset liikenneyhteydet mm metro n 300m päässä.
| Kohdenumero: 8286 |
| Osoite: Itämerenkatu 3, 00180 Helsinki |
| Maakunta: Uusimaa |
| Huoneiden kuvaus: Avotila + 2 h |
| Pinta-ala: 134 m² |
| Uudisrakennus: Ei |
| Kaupunginosa: Ruoholanti |
| Osakehuoneisto: Kyllä |
| Parveke: Ei |
| Energialuokka: ei |
| Asbestikartoitus: Ei |
| Tupakointi: Ei |
