Hankasuontie 9, 00390 Helsinki

Tuotantotila
138 m²

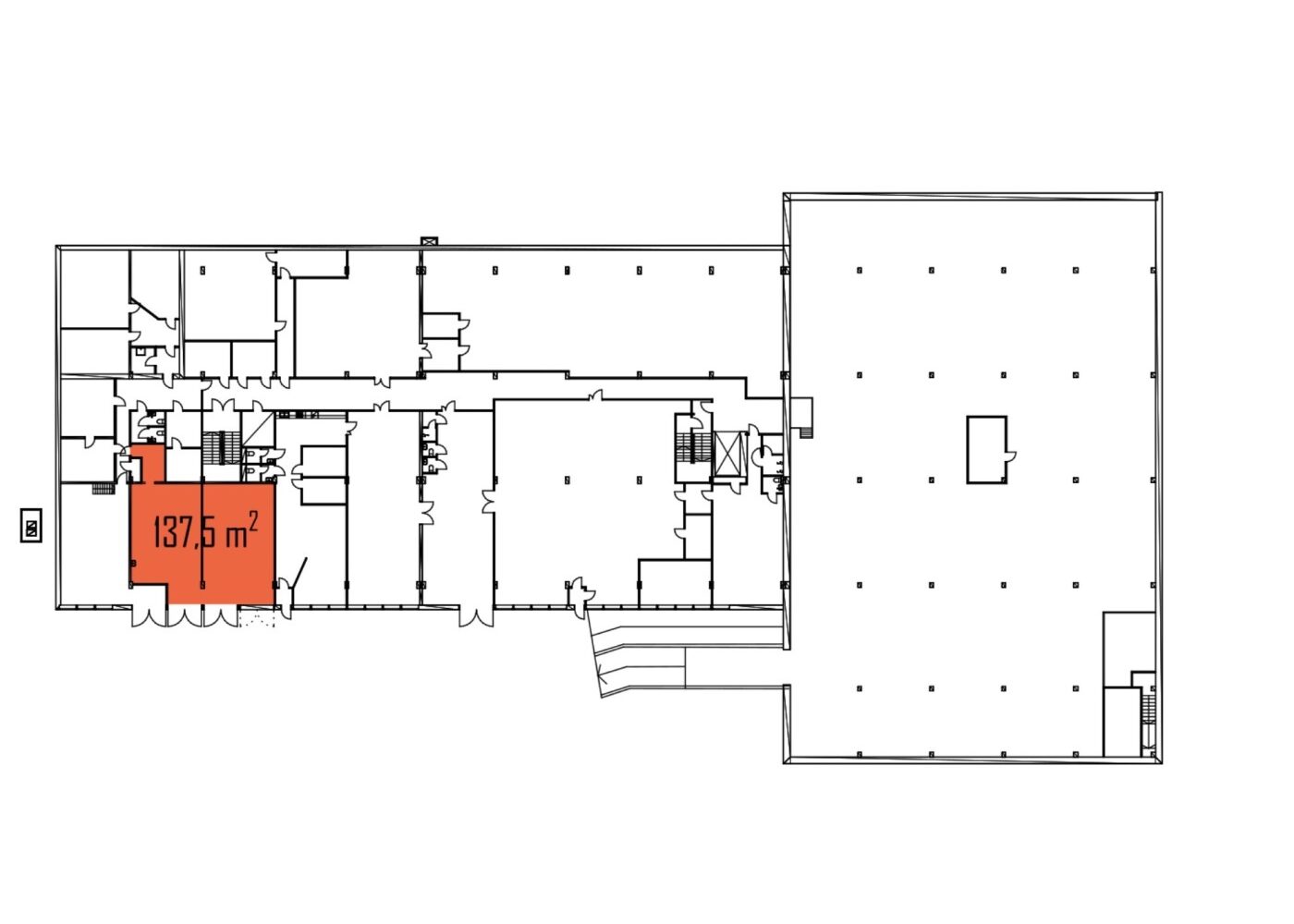
Vuokrataan kahdesta vierekkäisestä tilasta koostuva 137,5 m2 varastokokonaisuus rakennuksen alimmasta kerroksesta. Kokonaisuuteen kuuluu varastotilojen lisäksi pieni toimistohuone. Tilojen välillä on kulku myös sisäkautta. Kulkuyhteys pariovista suoraan pihalta, mikä helpottaa tavaran lastausta ja purkua. Wc on yhteiskäytössä.

Tila ei sovellu autopesu- tai korjaamotoimintaan.

Kiinteistö sijaitsee Vihdintien tuntumassa vilkkaalla Hankasuontien teollisuus- ja yritysalueella. Rakennuksessa toimii tällä hetkellä yrityksiä mm. maahantuonnin, tukkukaupan, kokoonpanon ja B2B-toiminnan parista. Lisätietoa kiinteistöstä.

Kysy lisää: jouko.raitanen@rhg.fi/0504695444

Perustiedot

Kohdenumero: 13192
Osoite: Hankasuontie 9, 00390 Helsinki
Maakunta: Uusimaa
Pinta-ala: 138 m²
Uudisrakennus: Ei
Kaupunginosa: Konala
Osakehuoneisto: Kyllä

Lisätiedot

Energialuokka: ei
Asbestikartoitus: Ei
Tupakointi: Ei

Kysy lisää tästä kohteesta

Jouko Raitanen
Jouko Raitanen jouko.raitanen@rhg.fi 050 469 5444
* vaaditut kentät