Fredrikinkatu 47, 00100 Helsinki

Toimistotila
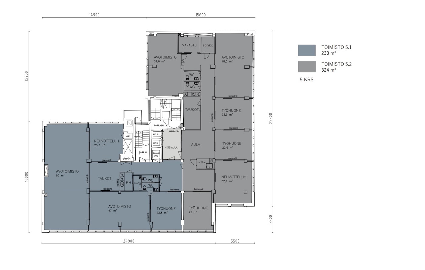
324 m²

Vuokrataan 324 m2 toimistotila, 5. kerros – kaksi neukkaria ja monipuolinen tilaratkaisu!

Tarjolla viidennen kerroksen moderni ja hyvin toimiva 324 m2 toimisto. Tila tarjoaa sekä aavotilaa että erillisiä suljettavia työskentelyhuoneita, jotka mahdollistavat rauhallisen työskentelyn ja tiimien eriyttämisen. Lisäksi toimistossa on kaksi neuvotteluhuonetta sekä oma suihku.

Tila on mahdollista yhdistää viereiseen 230 m2 toimistoon, jolloin kokonaisuudeksi muodostuu noin 550 m2 joustava ja tehokas toimistokokonaisuus.

Kiinteistö tarjoaa arkea helpottavia palveluja, kuten henkilöstöravintolan, ja alueen kulkuyhteydet ovat erinomaiset. Metroasemalle on noin 500 metriä ja Helsingin päärautatieasemalle noin 900 metriä, työmatkat sujuvat vaivattomasti.

Kysy lisää: jouko.raitanen@rhg.fi/0504695444

Perustiedot

Kohdenumero: 13021
Osoite: Fredrikinkatu 47, 00100 Helsinki
Maakunta: Uusimaa
Pinta-ala: 324 m²
Uudisrakennus: Ei
Osakehuoneisto: Kyllä

Lisätiedot

Energialuokka: ei
Asbestikartoitus: Ei
Tupakointi: Ei

Kysy lisää tästä kohteesta

Jouko Raitanen
Jouko Raitanen jouko.raitanen@rhg.fi 050 469 5444
* vaaditut kentät