Fredrikinkatu 47, 00100 Helsinki

Toimistotila
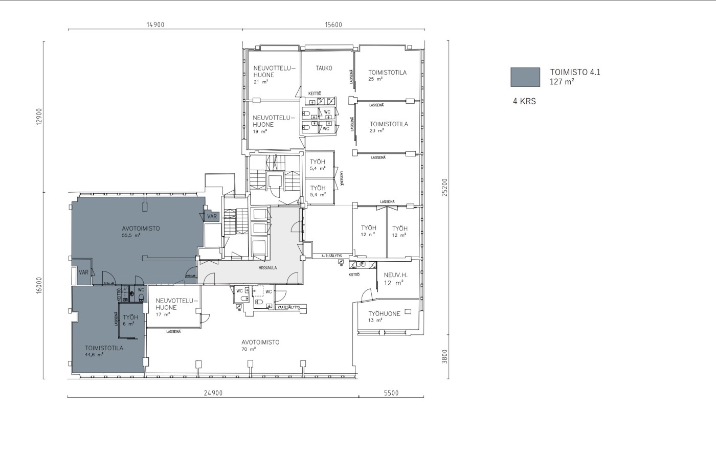
127 m²

Vuokrataan Helsingin Kampissa toimiva ja valoisa 4. kerroksen 127 m2 toimistotila, joka sopii loistavasti niin pienelle tiimille kuin ketterälle kasvuyritykselle. Tilassa on kaksi avotilaa, yksi työhuone, oma keittiö sekä wc. Jäähdytetty ilmanvaihto takaa miellyttävän sisäilman vuoden ympäri.

Kiinteistö tarjoaa arkea helpottavia palveluja, kuten henkilöstöravintolan, ja alueen kulkuyhteydet ovat erinomaiset. Metroasemalle on noin 500 metriä ja Helsingin päärautatieasemalle noin 900 metriä, työmatkat sujuvat vaivattomasti.

Kysy lisää: jouko.raitanen@rhg.fi/0504695444

Perustiedot

Kohdenumero: 13005
Osoite: Fredrikinkatu 47, 00100 Helsinki
Maakunta: Uusimaa
Pinta-ala: 127 m²
Uudisrakennus: Ei
Osakehuoneisto: Kyllä

Lisätiedot

Energialuokka: ei
Asbestikartoitus: Ei
Tupakointi: Ei

Kysy lisää tästä kohteesta

Jouko Raitanen
Jouko Raitanen jouko.raitanen@rhg.fi 050 469 5444
* vaaditut kentät