Elimäenkatu 22-24, 00510 Helsinki

Toimistotila
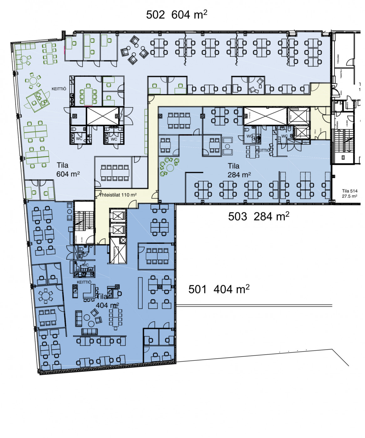
284 m²

Vuokrataan viidennen kerroksen 284m2 toimistotila. Vallila Corner sijaitsee Vallilassa, noin 3 kilometrin päässä Helsingin keskustasta, hyvien julkisten kulkuyhteyksien varrella. Vallila, entinen teollisuuskeskittymä, on tänä päivänä monipuolinen ja elävä alue toimistoineen, asuinkiinteistöineen sekä palveluineen. Vallila Cornerissa panostetaan toiminnan ekologisuuteen ja energiatehokkuuteen jatkuvasti: kaikki käyttösähkö on vihreää ja jätehuolto on kompensoitu hiilineutraaliksi.

Kiinteistön kellarikerroksessa sijaitseva Dylan Corner -ravintola on erikoistunut tuoreista aineksista valmistettuihin salaatteihin sekä herkullisiin lämpimiin ruokiin. Dylanin aamiainen on tarjolla aina arkisin klo 7.30–10.30 ja lounas klo 10.30–14.00.

Vallila Cornerin vuokralaisten omat pysäköintipaikat sijaitsevat parkkihallissa, jonka sisäänajoramppi on Elimäenkatu 22:n kohdalla. Pysäköintiin liittyvissä asioissa avustaa aulapalvelu. Erillisiä vieraspysäköintipaikkoja ei kiinteistöllä ole, mutta Elimäenkadun ja Kuortaneenkadun varsilla on mahdollisuus maksulliseen kadunvarsipysäköintiin ja Vallila Cornerin välittömästä läheisyydestä, osoitteesta Elimäenkatu 15, löytyy myös Aimo Parkin parkkihalli.

Ulkona olevat pyörätelineet löytyvät Kuortaneenkatu 2:n pääsisäänkäynnin edestä.

Vuokralaisilla on mahdollisuus pyöräsäilytykseen myös parkkihallin K3-tasolla sille osoitetulla alueella. Halliin kulku tapahtuu Elimäenkatu 22:n kohdalta ajoluiskan kautta.

Kiinteistöstä löytyy omat yleiset peseytymis- ja pukutilansa sekä miehille että naisille. Käytettävissä on lisäksi lukittavat vaatekaapit sekä kuivatustilat vaatteille.

Kysy lisää Jouko Raitanen Helsinki puh. 0504695444

Perustiedot

Kohdenumero: 10087
Osoite: Elimäenkatu 22-24, 00510 Helsinki
Pinta-ala: 284 m²
Uudisrakennus: Ei
Kaupunginosa: Vallila
Osakehuoneisto: Kyllä

Tilojen varustus

Parveke: Ei

Lisätiedot

Energialuokka: ei
Asbestikartoitus: Ei
Tupakointi: Ei

Kysy lisää tästä kohteesta

Jouko Raitanen
Jouko Raitanen jouko.raitanen@rhg.fi 050 469 5444
* vaaditut kentät