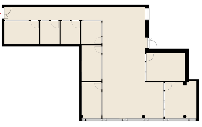
Säteri Business Parkista vuokrattavana toimisto (191 m2) 4.kerroksen pientoimistoalueelta. Toimisto käsittää 8 huonetta + avotilan. Vuokralaisilla on käytössä yhteiskäyttöiset tauko- ja sosiaalitilat. Kohde sijaitsee Etelä-Leppävaarassa Raide-Joken varrella ja on hyvin tavoitettavissa sekä julkisilla kulkuvälineillä että omalla autolla.
Kysy lisää sp. heli.reinberg@rhg.fi, toimitilat www.rhg.fi
| Kohdenumero: 10017 |
| Osoite: Linnoitustie 3, 02600 Espoo |
| Huoneiden kuvaus: 8 h + avotila |
| Pinta-ala: 191 m² |
| Uudisrakennus: Ei |
| Kaupunginosa: Leppävaara |
| Osakehuoneisto: Kyllä |
| Parveke: Ei |
| Energialuokka: ei |
| Asbestikartoitus: Ei |
| Tupakointi: Ei |
