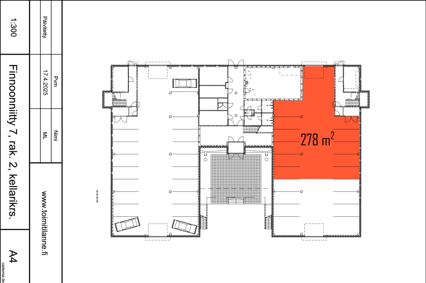
Vuokrataan helposti saavutettava noin 278 m2:n varastotila, jossa on suora sisäänajo nosto-oven kautta (leveys n. 3,6 m, korkeus n. 2,4 m). Tila soveltuu esimerkiksi varastointiin, huolto- ja pakkaustoimintaan tai kevyeen tuotantoon. Ei lattiakaivoa, eikä sovellu autopesulaksi.
Kysy lisää: jouko.raitanen@rhg.fi/0504695444
| Kohdenumero: 12673 |
| Osoite: Finnoonniitty 7, 02270 Espoo |
| Maakunta: Uusimaa |
| Pinta-ala: 278 m² |
| Uudisrakennus: Ei |
| Kaupunginosa: Suomenoja |
| Osakehuoneisto: Kyllä |
| Parveke: Ei |
| Energialuokka: ei |
| Asbestikartoitus: Ei |
| Tupakointi: Ei |
